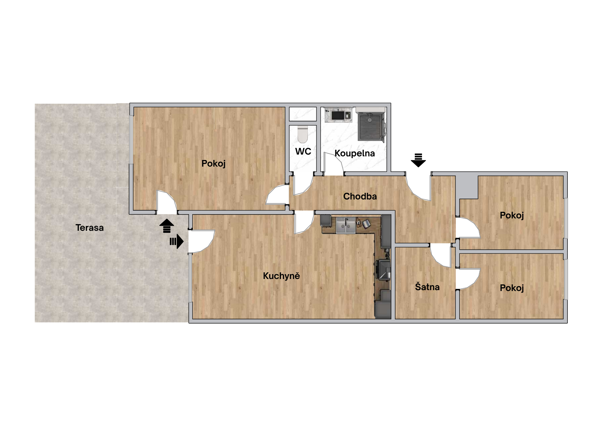
Nabízím k pronájmu exkluzivní byt 4+kk o výměře 92,23 m² + terasa a parkovací stání na adrese Kačírkova v Opavě. Byt se nachází v 1. podlaží z 6 a poskytuje komfortní bydlení s moderním vybavením.
Dispozice bytu zahrnuje prostorný obývací pokoj a moderní kuchyň s linkou plně vybavenou spotřebiči – myčkou, indukční varnou deskou, elektrickou troubou, digestoří a lednicí.
Dále tři samostatné pokoje, z nichž jeden má přímý vstup na terasu. Byt zároveň nabízí dostatek úložného prostoru díky vestavěným i volně stojícím skříním.
Koupelna se sprchovým koutem, samostatné WC a vstupní chodbu s dostatkem úložných prostor.
Doporučujeme si projít virtuální prohlídku bytu.
Velkou předností je terasa orientovaná do klidné části vnitrobloku, která přímo vybízí k posezení s rodinou či přáteli.
K jednotce náleží vyhrazené parkovací místo v garáži, což zajišťuje pohodlí i bezpečnost.
Byt je nabízen částečně vybavený – součástí jsou mimo jiné postele, skříně a stůl se židlemi v ložnici, takže je možné se pohodlně nastěhovat bez nutnosti pořizovat kompletní nábytek.
Lokalita v ulici nabízí kompletní občanskou vybavenost. V docházkové vzdálenosti se nachází supermarket, restaurace, kavárny, základní i mateřská škola, zdravotní středisko a sportovní areály. Nedaleko je rovněž obchodní centrum Breda & Weinstein a historické centrum Opavy, kde najdete veškeré služby, kulturu i zábavu. Výhodou je také rychlé napojení na hlavní tahy směrem do Ostravy či Hlučína.
Byt je k nastěhování ihned a nabízí pohodlné a reprezentativní bydlení v žádané lokalitě.
Tato nabídka je určena výhradně osobám bez evidence v registru exekucí. Pronajímatel si vyhrazuje právo prověřit bonitu zájemců, aby zajistil stabilní a bezproblémový nájemní vztah. Pro uzavření nájemní smlouvy je nutné doložit pravidelný a dostatečný příjem (např. pracovní smlouvu, výměr důchodu apod.).
Měsíční nájemné činí 23.000,-Kč +4.700,- Kč zálohy za služby pro 2 osoby
+ elektřina na nájemce bude zajištěna ke společnosti Innogy nebo ČEZ
Kauce 55.400,-Kč (kauci nesplátkujeme)
Poplatek RK 29.000,-Kč

Jsem profesionální realitní makléř pro Ostravu a okolí, kterého práce skutečně baví. Pomohu Vám ušetřit spoustu času, peněz a hlavně starostí.
Ke všem svým klientům přistupuji profesionálně, ale především férově a v přátelském stylu. Věnuji se jak pronájmům, tak prodejům, a do každé zakázky vkládám maximum. Mým cílem je ukázat vám, že existuje realitní makléř na špičkové úrovni, pro kterého je prioritou spokojenost klientů a perfektně zpracovaná zakázka.
Nemovitost není něco, co kupujete nebo prodáváte každý den. Není to jednoduchý nebo běžný nákup, a právě proto si zaslouží pečlivý přístup a odpovědnost. Jako realitní makléř se postarám o každý detail, abyste se cítili v jistotě při každém kroku.
Stále se vzdělávám, abych mohl svým klientům poskytovat ty nejlepší služby a rozuměl jejich potřebám. Každý den mě práce naplňuje a motivuje k tomu, abych byl ještě lepší a pomohl vám splnit vaše realitní cíle.
Pokud hledáte makléře, který se vám bude věnovat s nasazením a férovým přístupem, rád vás pozvu na kávu a nezávaznou konzultaci. Vzájemná důvěra je pro mě klíčová a jsem tu, abych vám pomohl realizovat vaše realitní plány.