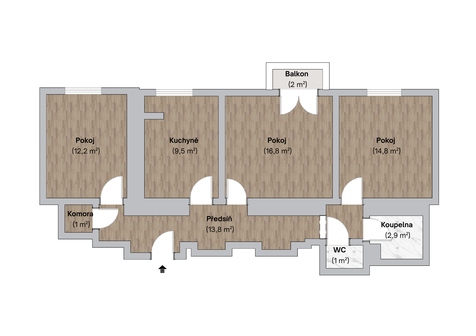
Nabízím k prodeji prostorný družstevní byt 3+1 s balkónem o celkové ploše 77 m², z toho [2 m²] balkón a [3 m²] sklep, který se nachází ve 4. nadzemním podlaží cihlového domu s výtahem na vyhledávané adrese Porubská 826, Ostrava–Poruba.
Družstevní podíl nelze převést do osobního vlastnictví.
Byt má velmi praktickou dispozici – prostorná chodba, neprůchozí pokoje (obývací pokoj, ložnice a například dětský pokoj), samostatnou kuchyň a praktickou komorou. Byt je v původním, udržovaném stavu, takže si jej můžete zrekonstruovat podle vlastních představ.
Koupelna a wc odděleně. Velkou výhodou u cihlové zástavby je vyzděné jádro, které výrazně snižuje náklady na rekonstrukci.
Dům se nachází v žádané části Poruby s vynikající dostupností MHD, v blízkosti Hlavní třídy, škol, školek, s dostatkem obchodů a restaurací. Zde je vše, co děla Porubu Porubou.
Byt je ideální pro ty, kdo hledají pohodlné bydlení v srdci Poruby s možností vytvořit si domov podle sebe.
Měsíční náklady na bydlení aktuálně činí 4.110 Kč z toho fond oprav 1.021 Kč. Podíl v družstvu nelze převést do osobního vlastnictví.
Máte zájem o prohlídku? Kontaktujte Davida z Kaktusu pro více informací a domluvte si termín osobní návštěvy.
Financování lze zajistit prostřednictvím našeho finančního specialisty.
Uvedené výměry jsou orientační. V případě více zájemců bude nemovitost prodána nejlepší nabídce a majitel si vyhrazuje právo vybrat kupujícího na základě jím zvolených kritérií. Veškeré zveřejněné údaje obsažené v tomto inzerátu mají pouze informativní charakter a nejsou nabídkou ve smyslu § 1731 nebo § 1732 občanského zákoníku, ani se nejedná o veřejný příslib dle § 1733 občanského zákoníku.
Cena: 3 900 000,- Kč včetně provize, právního servisu a advokátní úschovy

Jsem profesionální realitní makléř pro Ostravu a okolí, kterého práce skutečně baví. Pomohu Vám ušetřit spoustu času, peněz a hlavně starostí.
Ke všem svým klientům přistupuji profesionálně, ale především férově a v přátelském stylu. Věnuji se jak pronájmům, tak prodejům, a do každé zakázky vkládám maximum. Mým cílem je ukázat vám, že existuje realitní makléř na špičkové úrovni, pro kterého je prioritou spokojenost klientů a perfektně zpracovaná zakázka.
Nemovitost není něco, co kupujete nebo prodáváte každý den. Není to jednoduchý nebo běžný nákup, a právě proto si zaslouží pečlivý přístup a odpovědnost. Jako realitní makléř se postarám o každý detail, abyste se cítili v jistotě při každém kroku.
Stále se vzdělávám, abych mohl svým klientům poskytovat ty nejlepší služby a rozuměl jejich potřebám. Každý den mě práce naplňuje a motivuje k tomu, abych byl ještě lepší a pomohl vám splnit vaše realitní cíle.
Pokud hledáte makléře, který se vám bude věnovat s nasazením a férovým přístupem, rád vás pozvu na kávu a nezávaznou konzultaci. Vzájemná důvěra je pro mě klíčová a jsem tu, abych vám pomohl realizovat vaše realitní plány.